Terrain à LES MEES (04190)
Description
Découvrez ce superbe terrain constructible situé dans un quartier très recherché offrant un cadre de vie paisible et privilégié.
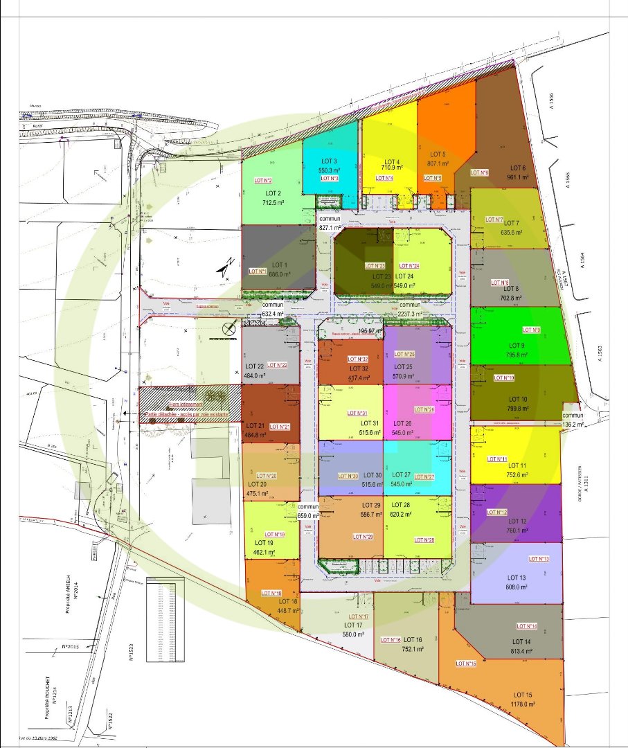
LOT 17 579.98m2
Les atouts du terrain :
– Vue sur Monfort et les Pénitents
– Libre constructeur : réalisez la maison de vos rêve en toute liberté
– Environnement calme : idéal pour un projet familial ou une résidence secondaire.
– Terrain idéalement placé au sein d’un lotissement ensoleillé.
Ce terrain offre un excellent potentiel pour un projet personnalisé, dans un secteur recherché et apprécié pour son calme et sa qualité de vie.
A saisir rapidement!
Prix de vente 103 000 Honoraires à la charge du vendeur Pour visiter et vous accompagner dans votre projet, contactez Morgan SIBON 06 58 05 30 03
Honoraires à la charge du vendeur Prix de vente 103 000
Selon l’article L.561.5 du Code Monétaire et Financier, pour l’organisation de la visite, la présentation d’une pièce d’identité vous sera demandée.
Les informations sur les risques auxquels ce bien est exposé sont disponibles sur le site Géorisques : www.georisques.gouv.fr
Cette présente annonce a été rédigée sous la responsabilité éditoriale de Morgan SIBON agissant sous le statut d’agent commercial immatriculé au Ville du greffe : MANOSQUE sous le numéro RSAC N° 891 399 610 auprès de la SAS IMMO RESEAU au capital de 10 000 – Réseau national immobilier sur internet, 44 Allée des Cinq Continents – 44120 VERTOU – RNE NANTES 519 718 886. Carte professionnelle T et G n° CPI 3002 2018 000 024 971 CCI de Nantes-Saint-Nazaire (44)
Garantie par GALIAN 89 rue de la Boétie – 75008 Paris N°171379G pour 120 000 pour T. Assurance responsabilité civile professionnelle par GALIAN n° de police 120 137 405
(réf. 37112) – Le professionnel garantit et sécurise votre projet immobilier
Prix de vente 103 000 Honoraires à la charge du vendeur
Caractéristiques
- Prix
- 103 000 €
- Réf annonce
- 37112
- Surface du terrain
- 579.98 m²
Diagnostics
Localisation du bien
Ce bien vous intéresse ?
Les autres biens de ce conseiller
Terrain à LES MEES (04190)
Terrain à vendre
Terrain à LES MEES (04190)
Terrain à vendre
Terrain boisé forêt à LES MEES (04190)
Terrain à vendre
Terrain à LES MEES (04190)
Terrain à vendre
Terrain à LES MEES (04190)
Terrain à vendre
Terrain à LES MEES (04190)
Terrain à vendre
Terrain à LES MEES (04190)
Terrain à vendre
Terrain à LES MEES (04190)
Terrain à vendre
Terrain à LES MEES (04190)
Terrain à vendre
Terrain à LES MEES (04190)
Terrain à vendre
Les engagements Immo Reseau
Des conseillers immobiliers se tiennent à l’écoute de vos besoins partout en France pour concrétiser votre projet immobilier. Vous avez un projet de vente immobilière ? Nos conseillers immobiliers vous accompagnent de A à Z pour vous aider à bien estimer votre bien et à le valoriser, mais également lors de la signature de l’acte définitif de vente.
Votre projet concerne l’acquisition d’un bien ? N’hésitez pas à prendre contact avec un conseiller immobilier de votre secteur pour le lui confier et lui faire part de vos critères. En fonction de ces critères, votre négociateur pourra vous proposer des biens correspondant à votre recherche.