Appartement à BEAUCHAMP (95250)
Nombre de chambre(s) : 2
Surface terrain : 8 m²
John LI LUN YUK
Tél : 06 14 75 28 53
Email : j.lilunyuk@immo-reseau.com
Description
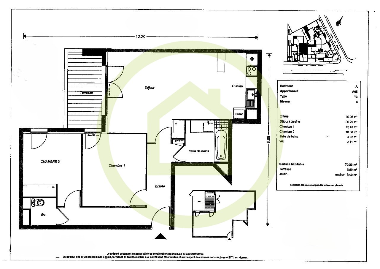
Découvrez cet élégant appartement T3 de 70,20 m² habitables.
Les façades allient avec charme pierre meulière et enduits clairs, agrémentées de balcons et loggias pour une allure raffinée et intemporelle.
Situé en rez-de-chaussée, cet appartement se compose de :
Un séjour spacieux de 30,29 m² avec cuisine ouverte
Deux chambres confortables : 12,43 m² et 10,50 m²
Une salle de bain avec baignoire. Un WC indépendant
Un hall d’entrée généreux de 10m²
Vous bénéficiez également d’un extérieur privatif avec :
Une terrasse de 7 m² et un jardin de 8 m²
Une place de parking intérieure
La résidence est entièrement sécurisée avec visiophone, alarme individuelle et est clôturée.
Elle propose des espaces dédiés aux deux-roues.
Prix de vente 314 900 Honoraires à la charge du vendeur Montant estimé des dépenses annuelles d’énergie pour un usage standard : entre 590 et 850 par an. Prix moyens des énergies indexés sur les années 2021 2022 2023 (abonnement compris). DPE : C GES : C
Pour visiter et vous accompagner dans votre projet, contactez John LI LUN YUK 06 14 75 28 53
Selon l’article L.561.5 du Code Monétaire et Financier, pour l’organisation de la visite, la présentation d’une pièce d’identité vous sera demandée.
Les informations sur les risques auxquels ce bien est exposé sont disponibles sur le site Géorisques : www.georisques.gouv.fr
Cette présente annonce a été rédigée sous la responsabilité éditoriale de John LI LUN YUK agissant sous le statut de salarié indépendant auprès de FCI Immobilier.
Assurance responsabilité civile professionnelle : n° de police 00000006322411804.
Le professionnel garantit et sécurise votre projet immobilier.Réseau national immobilier sur internet, 44 Allée des Cinq Continents – 44120 VERTOU – RNE NANTES 519 718 886. Carte professionnelle T et G n° CPI 3002 2018 000 024 971 CCI de Nantes-Saint-Nazaire (44)
Garantie par GALIAN 89 rue de la Boétie – 75008 Paris N°171379G pour 120 000 pour T. Assurance responsabilité civile professionnelle par GALIAN n° de police 120 137 405
(réf. 37228) – Le professionnel garantit et sécurise votre projet immobilier
Prix de vente 314 900 Honoraires à la charge du vendeur Montant estimé des dépenses annuelles d’énergie pour un usage standard : entre 590 et 850 par an. Prix moyens des énergies indexés sur les années 2021 2022 2023 (abonnement compris). DPE : C GES : C
Caractéristiques
- Superficie
- 70.2 m²
- Nbre de pièces
- 3
- Nbre de chambres
- 2
- Prix
- 314 900 €
- Réf annonce
- 37228
- Exposition
- SUD EST
- Nb de salles de bain
- 1
- Nb de wc
- 1
- Nombre d'étages
- 3
- Ascenseur
- Oui
- Surface du terrain
- 8 m²
- Nb de places de parking inté.
- 1
- Chauffage
- gaz
Diagnostics
C - 72 kWhEP/m²/an
C - 13 kgeqCO2/m²/an
Localisation du bien
Ce bien vous intéresse ?
Les autres biens de ce conseiller
Maison à BETHEMONT LA FORET (95840)
Maison à vendre
Classe énergétique : B
Maison à AUVERS SUR OISE (95430)
Maison à vendre
Appartement à BEAUCHAMP (95250)
Appartement à vendre
Classe énergétique : C
Maison à BETHEMONT LA FORET (95840)
Maison à vendre
Classe énergétique : D
Appartement à ENGHIEN LES BAINS (95880)
Appartement à vendre
Appartement à ENGHIEN LES BAINS (95880)
Appartement à vendre
Appartement à ENGHIEN LES BAINS (95880)
Appartement à vendre
Appartement à BESSANCOURT (95550)
Appartement à vendre
Classe énergétique : D
Appartement à BEAUCHAMP (95250)
Appartement à vendre
Classe énergétique : C
Les engagements Immo Reseau
Des conseillers immobiliers se tiennent à l’écoute de vos besoins partout en France pour concrétiser votre projet immobilier. Vous avez un projet de vente immobilière ? Nos conseillers immobiliers vous accompagnent de A à Z pour vous aider à bien estimer votre bien et à le valoriser, mais également lors de la signature de l’acte définitif de vente.
Votre projet concerne l’acquisition d’un bien ? N’hésitez pas à prendre contact avec un conseiller immobilier de votre secteur pour le lui confier et lui faire part de vos critères. En fonction de ces critères, votre négociateur pourra vous proposer des biens correspondant à votre recherche.